CBS - Copenhagen Business School

  • Client

    Copenhagen Business School

  • Team

    The Ministry of Higher Education and Science’s Building Directorate, Carl Bro A/S, Erik Reitzel, Stig L. Anderson

  • Location

    Solbjerg Plads 3, DK-2000 Frederiksberg

  • Size

    38,500 m2

  • Status

    Completed in 2001

  • Award

    Frederiksberg Municpality’s Architecture Award 1999 - 2001

  • Competition

    First Prize

Copenhagen Business School

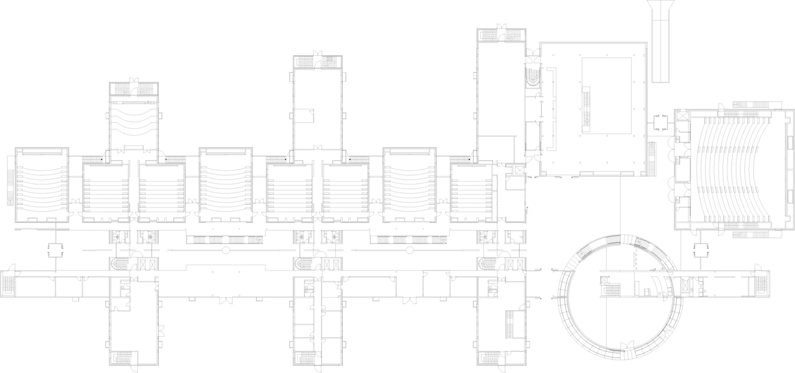
The Copenhagen Business School or the ‘Wedge’ has, since its construction, become the fulcrum of education and culture in Frederiksberg. The Copenhagen Business School stands out as one of the most prominent buildings on Solbjerg Square.

The building’s inner arcade forms a backbone with a series of auditoriums, a library, CBS’s joint administration, and common facilities. A big part of CBS on Solbjerg Square contains private programs, where the auditoriums are the most significant ones. In spite of that, the building presents itself as open and inviting – facing the busy pedestrian street at Frederiksberg Library and Frederiksberg Metro Station.

CBS is designed with earth tones in good-quality, robust materials. Transversal wing buildings are clad with screen bricks; built up around a visible steel frame, thus creating a robust ridge frame. This scales down the exterior spaces in front of the building. Stig L. Andersen has designed the pocket parks alongside the southern facade with funding from a series of foundations.

The slender building, that marks the inner arcade, is covered in window panels – and has a clear contrast to the submerged rotunda in the foyer designed with light, coloured concrete elements. The inner arcade is divided by smaller squares and break out spaces that naturally invite by passers in.

The tactile Öland-stone floor creates a well-balanced, acoustic atmosphere in the interior foyer and arcade spaces. Inside the library, the light columns and slab edges make the open floors appear as an interposed furniture in a large and comfortable space. The flooring in the library has a warmer tone to contrast the building’s other floors that are covered with a characteristic, red linoleum.

The building’s special feature is experiencing its extensive volume as a series of downscaled, well-proportioned wing houses, connected through refined detailing. In general, the spaces throughout the school – the faculties, foyer, inner arcade, study halls, and administration – are all naturally lit from the outside. The daylight filters through skylights and window panels that are carefully placed in accordance to the corners of the world and the building’s position on the plot. 

The parking areas include 350 parking spots distributed throughout the terrain and especially in the underground parking beneath the arcade. Arriving in the building from the underground parking, there is a direct connection to the institutes, administration, and the arcade through inner lifts and staircases.

The Copenhagen Business School on Solbjerg Square was designed by Vilhelm Lauritzen Architects after winning the 1st prize in an international architecture competition.

 

Other projects
Forest College Student Housing
Campus of the University City College Capital
The Niels Bohr Building