Trekroner School

  • Client

    Roskilde Municipality

  • Team

    Knudsen & Sørensen, Stig L. Anderson

  • Location

    Trekroner Allé, DK-4000 Roskilde

  • Size

    12,000 m²

  • Status

    Completed in 2005

  • Award

    Jacob Jørgen Jacobsen og hustrus byggepræmielegat

Trekoner School

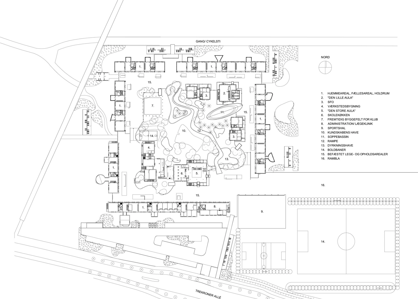
The Trekroner School is the result of the Danish Ministry of Education’s brief on ‘the schools of the future’. The school is located in Trekroner near Roskilde and serves a newer housing area. The client and architect have in many ways started from a tabula rasa. The design of the Trekroner School derives from new ways of teaching and untraditional spatial solutions. Hallways are for example non-existing – these areas have instead been included in the classrooms that have been designed as high ceilinged, well-lit project spaces and are called ‘home areas’.

The school is situated in a hilly landscape with four surrounding wing houses, containing the ‘home areas’ for tutoring. The remaining school programs are placed centrally in the school. Here you have the school kitchen, workshop, SFO, auditoriums, football pitch, and many others. In this way, the seasons and the landscape become an integrated part of the education.

The children will experience the change of seasons as they walk the distance from the ‘home areas’ to one of the designated project spaces. Hence nurturing a natural integration amongst the children and providing a consciousness of the entire school premises and the landscape, it is a part of.

In many ways, Trekroner is ‘the little school inside the bigger school’ – even though it grew to four groups in each year in 2017. To make the younger students feel more at home, their ‘home areas’ only span one storey and have consequently been placed with direct contact to the outside and the playground. These house wings have simultaneously been placed away from the older students’ ‘home areas’. The older students’ ‘home areas’ are placed where the terrain drops an entire floor, and span across two storeys.

‘The Garden of Knowledge’ is placed together with the other educational spaces in the middle of the complex. The garden is a 1:1-lab for a series of practical classes.’”The Garden of Knowledge” is designed to be a part of the learning process in, for example, natural science and cooking. We have a herbal garden, a vegetable garden, and we have fruit trees too; so the children can experience the change of seasons and harvest the food themselves. I remember from my time in school how dull it was to sit in the small, fully paved courtyards’, says Torsten Stephensen, partner at Vilhelm Lauritzen Architects. 

With its light brick walls, Trekroner appears as a balanced, light, and monolithic complex in the green landscape. Ventilation chimneys have been included in the architecture that, combined with grates placed in ankle height, lets the buildings heave in fresh air without mechanical control and closed windows.

Other projects
Forest College Student Housing
Campus of the University City College Capital
The Niels Bohr Building